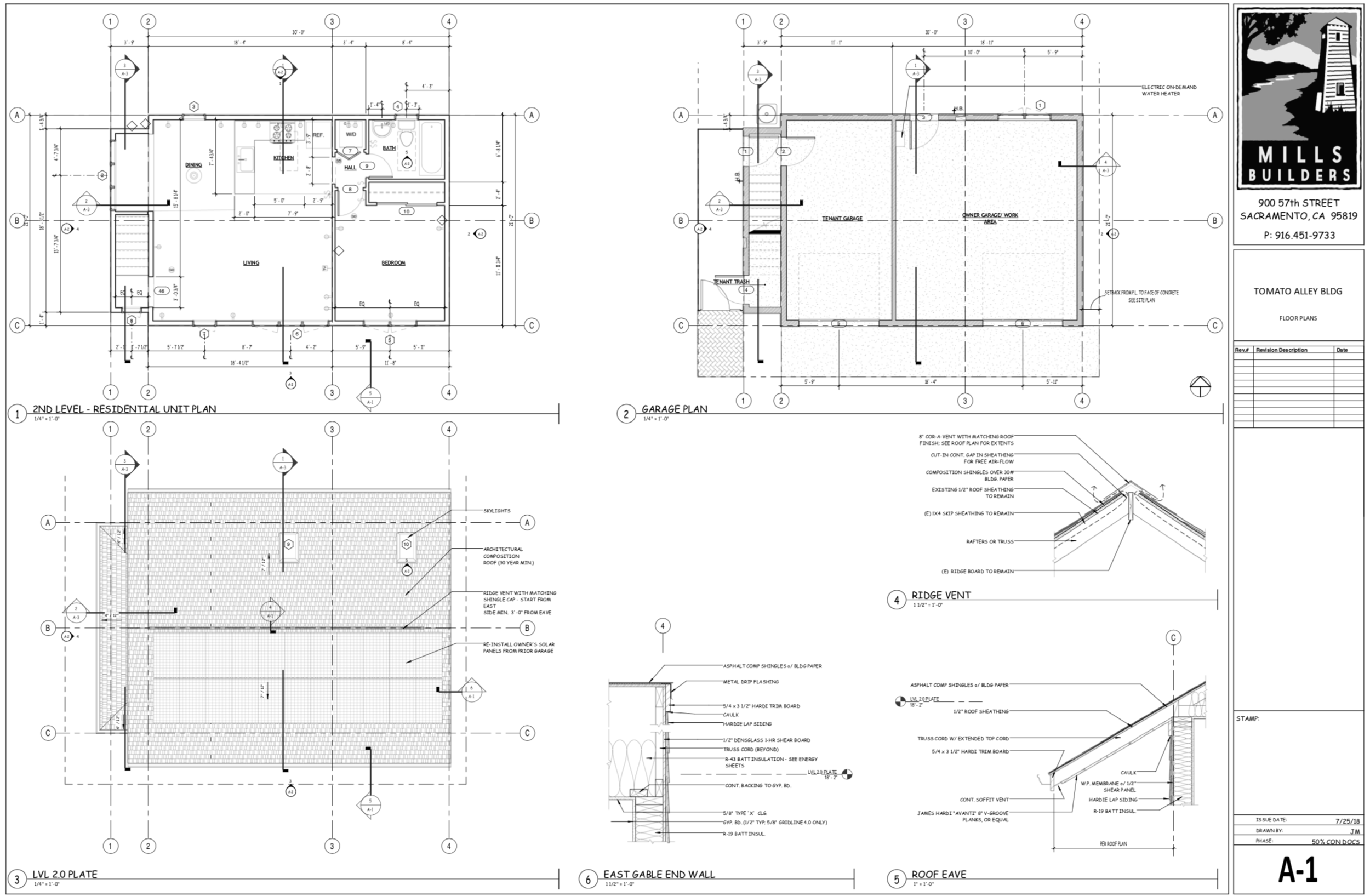
TOMATO ALLEY ADDITION

Midtown, Sacramento, California

Before

During

After

Planned

Next
Next

Writers Retreat